
Logistické centrum LCR7 – HALA B, Kostolné Kračany
Názov: LOGISTICKÉ CENTRUM LCR7 – HALA B, Kostolné Kračany
Lokalita: Kostolné Kračany
Klient: STAT-KON s.r.o
Rok projekcie: 2025
Popis: Projekt na stavebné povolenie
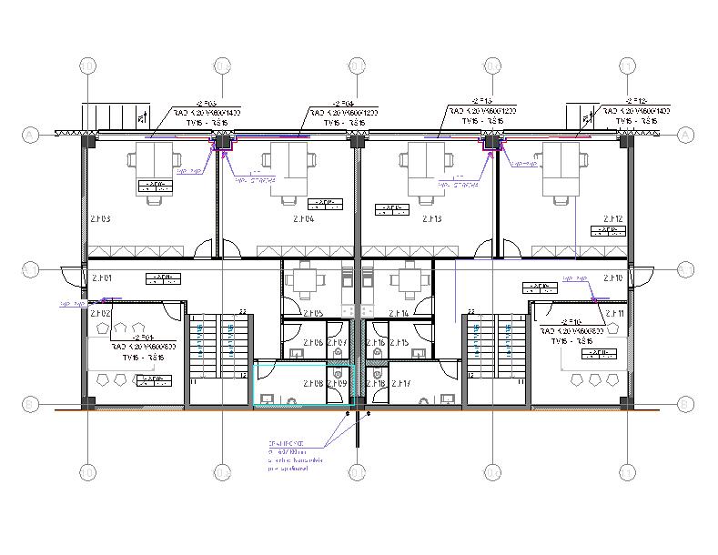
Projektovaným objektom je LOGISTICKÉ CENTRUM LCR7– Hala B nachádzajúci sa v obci Kostolné Kračany. Projektová dokumentácia bola vypracovaná pre potreby stavebného povolenia a rieši profesie vykurovanie, chladenie a vzduchotechniku (UK/CH + VZT).
Vykurovanie administratívnych priestorov je navrhnuté ako teplovodné podlahové vykurovanie, ktoré zabezpečuje rovnomerný tepelný komfort. Vykurovanie a chladenie vstavkov je riešené prostredníctvom fancoilových jednotiek (CH/UK), dimenzovaných na krytie tepelných ziskov a strát jednotlivých miestností.
Vetranie administratívnych priestorov je riešené ako nútené vetranie pomocou vzduchotechnických zariadení. Halový priestor je vetraný prostredníctvom rekuperačných vzduchotechnických jednotiek umiestnených na strede daného objektu, zabezpečujúcich požadovanú výmenu vzduchu v súlade s platnými normami. Navrhnuté technické riešenie spĺňa platné technické normy a predpisy a zabezpečuje požadovaný tepelný komfort, kvalitu vnútorného prostredia a energetickú hospodárnosť objektu.








